Architecture Design Planning Management - Kenilworth, Warwickshire Architect
R.A.G. Architects are based in Kenilworth, Warwickshire and currently have projects in Coventry, Rugby, Kenilworth, Leamington Spa, Stratford and the surrounding area. We offer a full architectural service with experience in residential, commercial, retail, mixed use and industrial projects.
Kenilworth Architects NC01
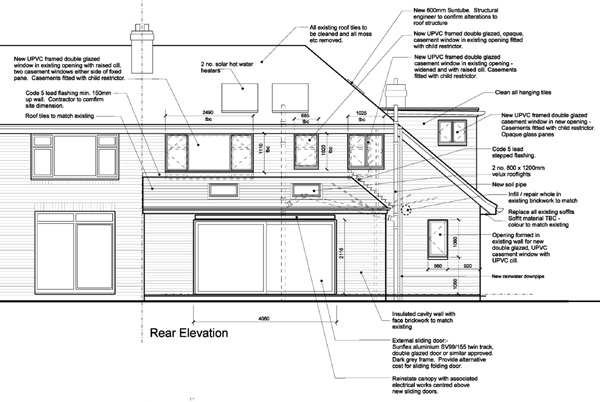
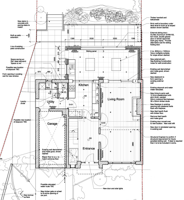
Work is currently being progressed for an extension and conversion to a house in Kenilworth to create open plan living area with many windows and skylights to provide a great deal of natural lighting. Work is expected to be completed within the next 4 weeks. More photos will be added was work progresses.







