Architecture Design Planning Management - Kenilworth, Warwickshire Architect
R.A.G. Architects are based in Kenilworth, Warwickshire and currently have projects in Coventry, Rugby, Kenilworth, Leamington Spa, Stratford and the surrounding area. We offer a full architectural service with experience in residential, commercial, retail, mixed use and industrial projects.
Kenilworth Architects, RAG Architects Recent Work
Harborough Magna, Rugby
Planning application is being sought for an extension to a period home to provide an Orangery with open plan kitchen, dining and living space within. A decision is expected in June 2013.
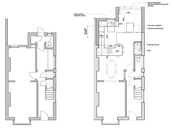
Kenilworth, Warwickshire
Work has recently completed for an extension to a home in Kenilworth, Warwickshire to provide additional area and an open plan kitchen.
Ettington, Warwickshire
A planning application has recently been submitted to an extension to a home in Ettington









